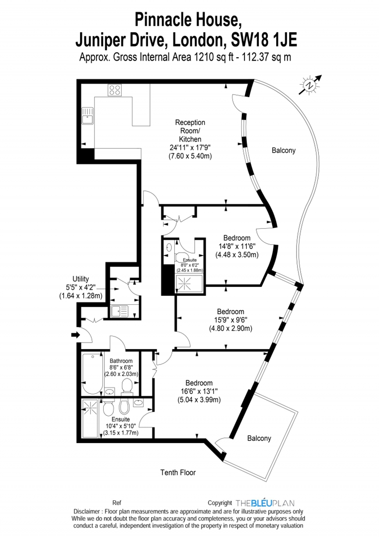
3 bedrooms
3 bathrooms
1 reception
1,210 sqft
3 bedrooms
3 bathrooms
1 reception
1,210 sqft


We are pleased to offer a modern three bedroom apartment in a new built Pinnacle House in the award winning Battersea Reach riverside development. The property comprises open plan reception, fully fitted kitchen, large private balcony, three bedrooms, three bathrooms (2 en suites). The property comes with a parking space.
The development offers 24 hours concierge service, residents only gymnasium and business centre with a private meeting room. Further on-site facilities included a coffee shop, a French patisserie, Tesco express, hair & beauty salon, Fitness studio, health care clinic, riverside nursery and a waterfront bar & restaurant.
Wandsworth Town and Clapham Junction (National Rail) stations are within easy reach for connections into central London and buses providing access across the river to Fulham & Chelsea. Thames Clipper river taxi service is now in operation also with the pier located just a few hundred yards from the development. Old York road is within close proximity with selection of boutiques, cafes, restaurants and shops along with Southside shopping centre in Wandsworth which offers a large selection of high street shops, a large Waitrose, Sainsbury's and Cineworld multiplex.
Service Charge (Incl Ground Rent): £6,000.00pa
Tenure: 990 years remaining (Leasehold)