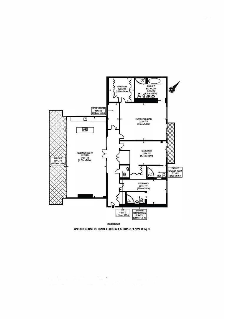
3 bedrooms
3 bathrooms
1 reception
2402 sqft
3 bedrooms
3 bathrooms
1 reception
2402 sqft
A modern penthouse apartment positioned on the 9th Floor of the new Courthouse development by Barratt Homes, located in the heart of Westminster and only moments from the River Thames. This spacious apartment of 2402 Sq Ft (223.11 Sq M) has been finished to the highest standard and offers natural stone flooring, tongue and groove timber flooring, underfloor heating, comfort cooling and audio system.
The accommodation comprises of an open plan reception room offering direct access to a private terrace offering fantastic views onto St Johns garden square, luxury kitchen with integrated Gaggenau appliances with wine cabinet and coffee machine. There is a large master bedroom suite with a walk in wardrobe and full en-suite bathroom, there are two further double bedrooms and 2 en-suite contemporary bathrooms all benefitting from exceptional views of Big Ben, Houses of Parliament and The London Eye, utility room, separate WC and two underground parking spaces.
Residents benefit from an array of amenities including a 24 hour concierge, a fully equipped fitness suite and access to an attractive landscaped courtyard garden with water feature. The Courthouse is fortunate to be in a superb Westminster location, being only 10 minutes from St James' Park and Westminster tube stations, as well as only a short walk to Victoria station.
Service Charge: £16,256.00pa
Ground Rent: £700.00pa
Tenure: 990 years remaining (Leasehold)














